BIM
CAD to BIM Services
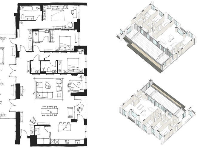
"We facilitate the conversion of 2D designs into accurate and detailed Building Information Models"
Our capabilities for CAD to BIM Services include the conversion of AutoCAD drawings, PDFs, hand sketches, pictures, single line diagrams, and 2D or 3D DWG files to Revit 3D BIM models as per client requirements.
We assess the project-specific BIM requirements of our clients and we offer solutions based on the needs. Our BIM Outsourcing Services extends to the development of detailed models from a level of detail of LOD 100 to LOD 350. We assure that our model aids the value throughout the entire building life cycle from design and construction, to operations and maintenance.
Inputs required from clients to deliver CAD to BIM Conversion services
Our PDF & CAD to BIM Conversion Services are focused on Architectural, Engineering (Civil, Structural, MEP).
- 2D or 3D AutoCAD Drawings (DWG, DXF, DNG file format)
- Pictures & Images (JPEG)
- 2D Drawings (PDF or other file formats)
- Hand sketches or Single line diagrams
- Company standards
Our CAD to BIM Services Include
Our CAD to BIM Services can develop BIM models from existing 2D floor plans, elevations, and sections in CAD or even in PDF format. We can create detailed and accurate BIM models – Architectural | Structural | MEPFS from either a PDF or an image or hand-drawn sketches or 2D or 3D CAD files.
PDF to BIM Modeling Services
All we need is a PDF file of the project drawings and our BIM modelers can convert it into a BIM model in Revit.
CAD to BIM Conversion Services
All we need is a 2D CAD (.dwg) file of the project drawing and our BIM modelers can convert it into a BIM model in Revit.
3D CAD to BIM Modeling Services
Even if you have a 3D CAD file of the project drawing, our BIM modelers can convert it into a BIM model in Revit.
Sketch to BIM Modeling Services
All we need is the hand-drawn sketch of the project and our BIM modelers can convert it into a BIM model in Revit.
CAD to BIM Services through Stages of Project
Preliminary Design Stage
The preliminary stage of the building design phase includes rough sketches, and drawings that illustrate the basic concepts of design and we can create a BIM model that includes the main building form, space planning, and 3D views – isometrics, axonometric, and perspectives.
We can also provide basic quantities from BIM models to enable cost evaluation at an early stage, thereby reducing future design changes.
If we receive 2D or 3D CAD files (.dwg) of building design in the schematics phase then we will create a Revit BIM model with the details such as plans, elevations, sections, and 3D views along with the following details:
- 3D scale model of entire building showing context (neighboring buildings, infrastructure)
- 3D views – isometrics, axonometrics, and perspectives
- Floor plans of all levels and exterior building elevations with generic openings and finishes
- Building cross section
- Typical wall section
- Simulations – Walk-through and Flyover
Detailed Design Stage
The detailed design stage involves finalizing the design, specifying items such as materials, windows and doors location, and structural details.
We can develop accurate and detailed BIM models to enable the project team to ‘build’ the project in a virtual environment.
Our team supports clients through data sharing and integration for design coordination, detailed analysis, and addition of specification data.
If we receive 2D or 3D CAD files (.dwg) of building design developed in the design development stage then we will create a Revit BIM model with the details such as exterior envelops, structure, fenestration, interior systems, MEPFS systems, etc. along with the following details:
- Floor plans & exterior elevations with proposed basis of design openings and finishes
- Structural grid, interior wall, & overall dimensions
- Wall sections at all typical conditions
- Additional building sections
- Additional details to establish basis of design products
Technical Design Stage
The construction document includes an accurate set of drawings, PDFs, notes, and technical specifications necessary for tendering & construction.
Our team can convert construction drawings (architectural, structural, MEPFS) into a BIM model as per requisite construction codes, standards, and specifications.
Our knowledge in the field of construction gives us expertise in creating high-quality BIM models.
If we receive 2D or 3D CAD files (.dwg) of building design developed as a construction document then we will create Revit BIM models with the following details:
- BIM Models – architectural, structural, MEPFS
- Fully annotated floor plans, sections, exterior elevations
- All building sections including wall sections at all conditions
- HVAC plans, schedule, details and notes
- Electrical plans, Plumbing plans, schedule, details and notes
- All general and detailed notes
